Benalmadena

Te koop Half vrijstaand huis Costa Del Sol Benalmadena € 760.000,-

Ref.no: RSOR5208523
Price: € 760.000,-

1-7980e48d732b6fc85c14b43b94d2aa54.jpg

Te koop Half vrijstaand huis Costa Del Sol Benalmadena € 760.000,-

Bedrooms4
Salles de bains3
Superficie du terrain110m²
Poolno
Gardenyes
Parkingno
Built year2001
Ligging: Stad, Commercieel gebied, Dicht bij winkels, Dicht bij zee, Dicht bij stad, Dicht bij scholen
Orientatie: Zuid-West
Staat: uitstekend, recent gerenoveerd
Klimaatregeling: airconditioning
Uitzicht: Zee, Bergen, Stedelijk
Caractéristiques : Terrasse couverte, Placards intégrés, Proximité des transports, Terrasse privée, Salle de jeux, Débarras, Salle de bains attenante, Barbecue, Fibre optique
Meubels: volledig gemeubileerd
Keuken: volledig ingericht
Tuin: privé, eenvoudig onderhoud
Beveiliging: intercom
Parkeren: Garage, privé
Categorie: Wederverkoop
Ref.no: RSOR5208523
Price: € 760.000,-

Plus d'information ›››
Te koop Half vrijstaand huis Costa Del Sol Benalmadena € 760.000,-

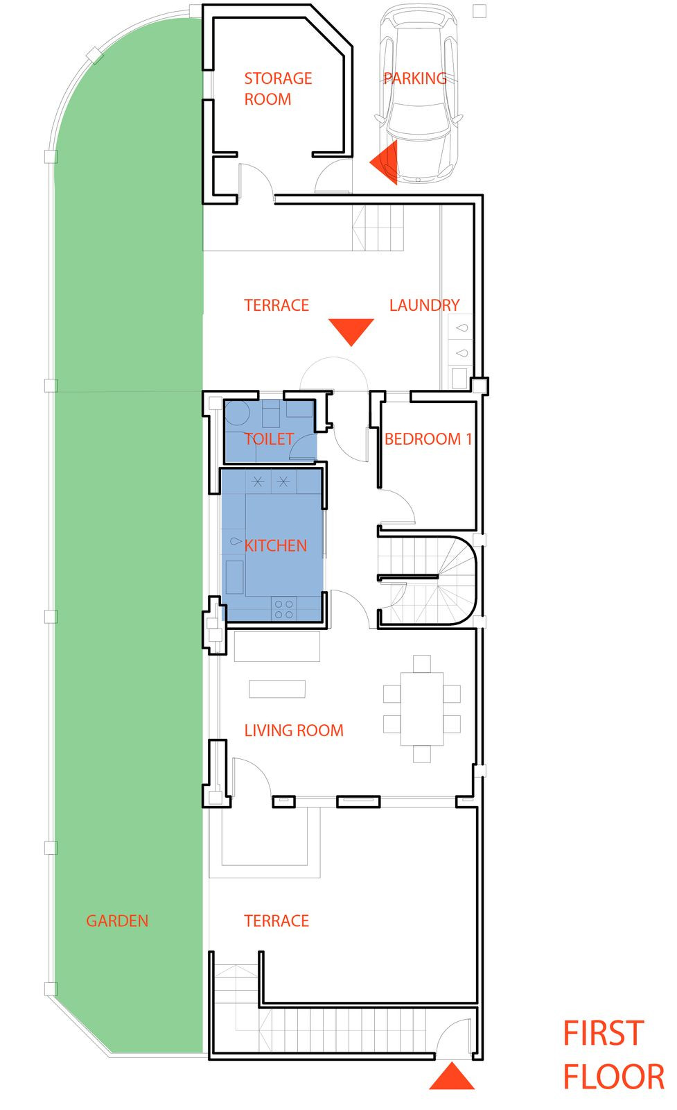
**Superbe maison de ville mitoyenne de 4 chambres à vendre à Benalmádena – Confort moderne et emplacement de choix !**

Découvrez cette maison de ville magnifiquement rénovée comprenant **4 chambres spacieuses**, **3 salles de bains**, un **salon lumineux** et une **cuisine moderne entièrement équipée**.

Profitez du soleil toute la journée grâce à **deux grandes terrasses (50 m² au total)** orientées est et ouest, ainsi qu'un jardin privé (48 m²) avec une aire de jeux (27 m²), un espace buanderie, un local de rangement séparé et un parking privé.

La propriété est équipée de fenêtres à triple vitrage, d'une isolation extérieure de haute qualité, d'une pergola bioclimatique avec éclairage LED, de sols en céramique et en bois, et de placards intégrés.

Idéalement située à deux pas des transports en commun, des écoles, des supermarchés et avec un accès facile à l'autoroute, cette maison familiale est parfaite dans un quartier exceptionnel !

**Possibilité d'agrandissement avec un sous-sol indépendant d'environ 60 m²**

### **Caractéristiques techniques**
**Fenêtres :** Système EUROFUTUR de KÖMMERLING, type de verre PL ULTRA N 4/20/6 mm.
**Pergola bioclimatique :** 8x4 m, cadre renforcé, éclairage LED, marque *Solisysteme*.
**Auvent de terrasse avant :** Marque allemande *Markilux*.
**Isolation des murs extérieurs :** Laine minérale Supafil 034 (isolation soufflée) offrant :
*Excellent **confort thermique**, éliminant l'effet de paroi froide et assurant une répartition homogène de la température intérieure.
*Ajout d'une **isolation acoustique** pour la réduction du bruit.
Matériau écologique, contribuant à réduire les émissions de CO₂.
Résistant à l'humidité, hydrofuge, non hygroscopique.
*Ne favorise pas la prolifération de moisissures ou de bactéries. --- ###

**Avis juridique** Conformément au décret 218/2005 relatif à l'information des consommateurs en matière de vente et de location de biens immobiliers en Andalousie : **Les frais de notaire, d'enregistrement, la taxe de mutation (ITP), les frais financiers et autres coûts liés à l'achat ne sont pas inclus dans le prix indiqué.**

Alternatives

1-7980e48d732b6fc85c14b43b94d2aa54.jpg

Te koop Half vrijstaand huis Costa Del Sol Benalmadena Costa € 799.000,-

Price € 799.000,-
Plus d'information
1-7980e48d732b6fc85c14b43b94d2aa54.jpg

Te koop Half vrijstaand huis Costa Del Sol The Golden Mile € 750.000,-

Price € 750.000,-
Plus d'information
1-7980e48d732b6fc85c14b43b94d2aa54.jpg

Te koop Vrijstaande Villa Costa Del Sol Marbella € 787.000,-

Price € 787.000,-
Plus d'information
1-7980e48d732b6fc85c14b43b94d2aa54.jpg

Te koop Half vrijstaand huis Costa Del Sol Fuengirola € 855.000,-

Price € 855.000,-
Plus d'information
Disclaimer | Links
Casadelmar %lng_cookie_notice% %lng_close%
x