Costalita

Te koop Middle Floor Apartment Costa Del Sol Costalita € 995.000,-

Ref.no: RSOR5223250
Price: € 995.000,-

1-7980e48d732b6fc85c14b43b94d2aa54.jpg

Te koop Middle Floor Apartment Costa Del Sol Costalita € 995.000,-

Bedrooms2
Salles de bains2
Superficie du terrain100m²
Poolyes
Gardenyes
Parkingno
Built year1996
Ligging: aan het strand, dicht bij zee, dicht bij scholen, urbanisatie, strandcomplex aan de eerste lijn
Orientatie: Zuid, Zuid-West
Staat: uitstekend
Zwembad: gemeenschappelijk
Klimaatregeling: airconditioning, warme airconditioning, koude airconditioning
Uitzicht: zee, tuin
Caractéristiques : Terrasse couverte, Ascenseur, Armoires encastrées, Terrasse privée, Salle de bains attenante, Double vitrage
Meubels: volledig gemeubileerd
Keuken: volledig ingericht
Tuin: Gemeenschappelijk
Beveiliging: Gated Complex
Nutsbedrijven: elektriciteit
Categorie: strand, luxe, wederverkoop
Ref.no: RSOR5223250
Price: € 995.000,-

Plus d'information ›››
Te koop Middle Floor Apartment Costa Del Sol Costalita € 995.000,-

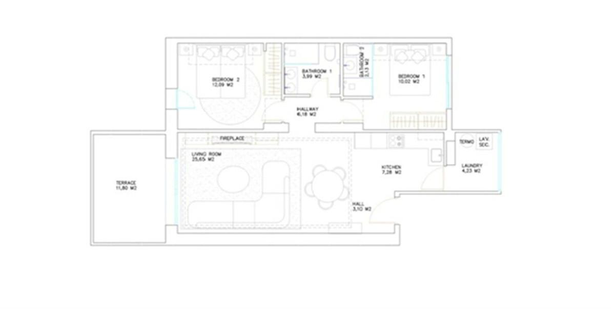
Ce magnifique appartement de deux chambres et deux salles de bains, entièrement rénové, offre une vue imprenable sur la mer et un cadre de vie élégant et confortable dans l'un des quartiers côtiers les plus prisés d'Estepona. Chaque détail de ses 100 m² a été repensé dans un style contemporain et épuré, alliant matériaux de haute qualité et finitions modernes. Lumineux et accueillant, cet appartement est prêt à vous accueillir et idéal pour une vie paisible en bord de mer. Une spacieuse terrasse de 11 m² prolonge l'espace de vie vers l'extérieur, offrant un havre de paix pour profiter du calme environnant.

Située dans le quartier résidentiel huppé de Costalita, cette maison se trouve au sein d'un complexe balnéaire très prisé de la Costa del Sol. Les résidents profitent de jardins tropicaux luxuriants, d'une magnifique piscine commune et d'un accès direct à la plage et à la promenade panoramique. Le quartier offre un large éventail de commodités à proximité, notamment des restaurants, des boutiques, des terrains de golf et une école à Cancelada. Puerto Banús étant à seulement 10 minutes en voiture et le centre-ville d'Estepona à environ 12 minutes, cet emplacement allie confort et prestige.

Cet appartement bénéficie d'une orientation sud-ouest qui baigne les pièces de lumière naturelle tout au long de la journée. Entièrement meublé, il comprend des placards intégrés, une cuisine entièrement équipée et un système de climatisation réversible et chauffage central, garantissant un confort optimal en toute saison. La résidence sécurisée, avec son interphone, offre une sécurité renforcée, faisant de ce bien un choix idéal pour quiconque recherche une résidence de luxe en bord de mer.

Alternatives

1-7980e48d732b6fc85c14b43b94d2aa54.jpg

Te koop Middle Floor Apartment Costa Del Sol Puerto Banús € 1.095.000,-

Price € 1.095.000,-
Plus d'information
1-7980e48d732b6fc85c14b43b94d2aa54.jpg

Te koop Middle Floor Apartment Costa Del Sol Fuengirola € 900.000,-

Price € 900.000,-
Plus d'information
1-7980e48d732b6fc85c14b43b94d2aa54.jpg

Te koop Bovenwoning Costa Del Sol La Quinta € 999.000,-

Price € 999.000,-
Plus d'information
1-7980e48d732b6fc85c14b43b94d2aa54.jpg

Te koop Gelijkvloers appartement Costa Del Sol Estepona € 980.000,-

Price € 980.000,-
Plus d'information
Disclaimer | Links
Casadelmar %lng_cookie_notice% %lng_close%
x