Te koop Half vrijstaand huis Costa Del Sol Alcaucín € 4.100.000,-
Ref.no: RSOR4902448
Price: € 4.100.000,-
Te koop Half vrijstaand huis Costa Del Sol Alcaucín € 4.100.000,-
| Bedrooms | 3 |
| Salles de bains | 2 |
| Superficie du terrain | 7950m² |
| Living area | m² |
| Pool | no |
| Garden | no |
| Parking | no |
| Cooling | %lng_% |
| Storage | %lng_% |
| Elevator | %lng_% |
| Built year | 2008 |
| Floor | |
| Omgeving: Land, Dorp, Bergpueblo, Dicht bij winkels, Urbanisatie | |
| Orientatie: Noord, Oost, Zuid, West | |
| Pool: ruimte voor zwembad | |
| Uitzicht: Bergen, Land, Panoramisch, Stedelijk, Bos | |
| Kenmerken: privéterras | |
| Parkeerplaats: Garage, Overdekt, Gemeenschappelijk, Privé |
Price: € 4.100.000,-
Plus d'information ›››
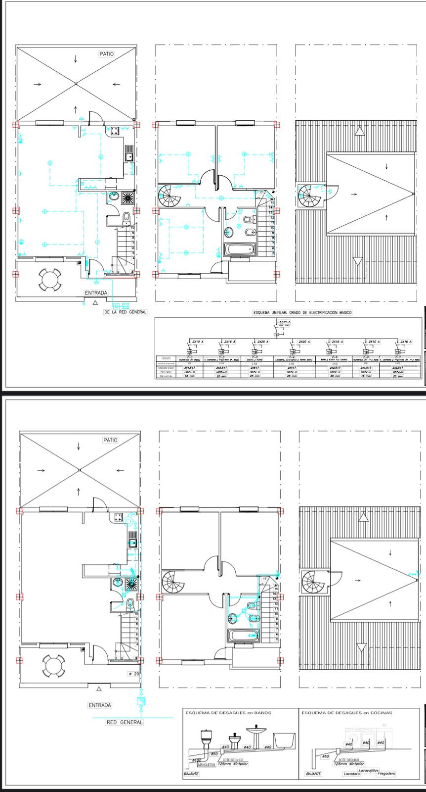
Opportunité d'investissement unique : Projet résidentiel de 52 maisons de ville à Alcaucín, Málaga
Si vous recherchez un investissement à fort potentiel sur la Costa del Sol, ce projet est fait pour vous. Situé à Alcaucín, un quartier paisible offrant des vues imprenables sur les montagnes, ce programme immobilier résidentiel est prêt à être achevé et bénéficiera de la demande croissante de logements dans la région.
Détails du projet :
• 52 maisons de ville, chacune avec 3 chambres et un garage privé.
• Superficie totale du terrain : 7 950 m².
• État d'avancement des travaux : entre 40 selon les unités.
• Documentation complète : comprend le projet technique et tous les permis nécessaires pour reprendre immédiatement la construction.
Emplacement de premier choix :
• Niché dans un cadre naturel offrant des vues dégagées et une atmosphère sereine.
• Proche des services essentiels et avec un accès facile à la Costa del Sol.
• Idéal pour ceux qui recherchent une bonne qualité de vie, alliant nature, intimité et proximité des zones côtières les plus prisées.
Potentiel du projet :
• Polyvalence : idéal pour le développement d'une communauté résidentielle privée, de maisons de vacances ou d'un complexe touristique.
• Rentabilité garantie : la forte demande de logements à Malaga et dans ses environs, associée à l'excellent rapport qualité-prix de ce projet, en fait une opportunité exceptionnelle.
Pourquoi investir ici ?
• Un emplacement exceptionnel offrant des vues uniques.
• Des progrès significatifs ont déjà été réalisés, réduisant les délais et les coûts de développement.
• Prêt à permettre à l'acheteur de reprendre et de terminer la construction, optimisant ainsi l'investissement.
Ne manquez pas cette opportunité d'acquérir un projet à fort potentiel dans l'une des régions les plus attractives d'Espagne. Contactez-nous dès maintenant pour plus d'informations ou pour programmer une visite.
BE - Nederlands
DE - Deutsch
DA - Danske
EN - English
FI - Suomi
FR - Français
NL - Nederlands
NO - Norsk
RU - Русский
SV - Svenska