Vélez-málaga

Te koop Residential Plot Costa Del Sol Vélez-málaga € 805.000,-

Ref.no: RSOR5305549
Price: € 805.000,-

1-7980e48d732b6fc85c14b43b94d2aa54.jpg

Te koop Residential Plot Costa Del Sol Vélez-málaga € 805.000,-

Poolno
Gardenyes
Parkingno
Ref.no: RSOR5305549
Price: € 805.000,-

Plus d'information ›››
Te koop Residential Plot Costa Del Sol Vélez-málaga € 805.000,-

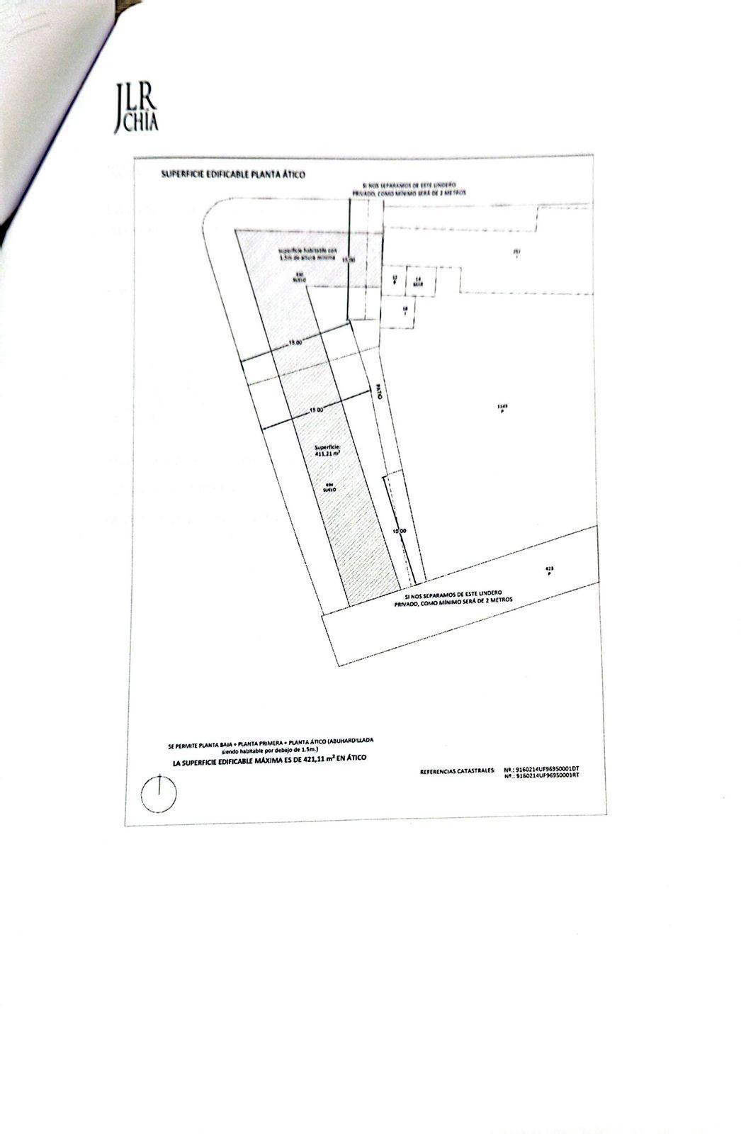
Deux parcelles urbaines à vendre à Almayate, d'une superficie totale de 945 m², commercialisées conjointement, représentant une excellente opportunité d'investissement dans une zone en pleine expansion de la commune de Vélez-Málaga.

Les parcelles font l'objet d'un avant-projet (anteproyecto) pour la construction d'un ensemble résidentiel collectif, conformément au règlement d'urbanisme municipal en vigueur de Vélez-Málaga. Elles sont classées en zone urbaine CTP-1, ce qui permet le développement d'un projet résidentiel à fort potentiel de rentabilité.

Situés dans un quartier calme et bien desservi, à quelques minutes de la plage et avec un accès facile aux services, aux commerces et aux principaux axes de transport, ces terrains offrent des conditions idéales pour les promoteurs et les investisseurs souhaitant construire un projet résidentiel sur la Costa del Sol.

Le prix indiqué ne comprend pas les taxes ni les frais. L’acquisition sera soumise à la taxe sur les mutations immobilières (TMI) au taux de 7 à 0,5 à 0,3 %), calculés sur le prix d’achat.

Les montants indiqués sont fournis à titre informatif seulement et peuvent varier selon chaque cas particulier.

Pour ce bien, les coûts approximatifs seront les suivants :

Taxe de mutation immobilière (7 %) : 56 350 €

Notaire : entre 2 415 € (0,3 )

Registre foncier : entre 805 € (0,1 )

L'acquisition de ce bien immobilier n'entraîne aucun frais d'agence immobilière pour l'acheteur.

Alternatives

1-7980e48d732b6fc85c14b43b94d2aa54.jpg

Te koop Residential Plot Costa Del Sol Marbella € 795.000,-

Price € 795.000,-
Plus d'information
1-7980e48d732b6fc85c14b43b94d2aa54.jpg

Te koop Residential Plot Costa Del Sol Cabopino € 890.000,-

Price € 890.000,-
Plus d'information
1-7980e48d732b6fc85c14b43b94d2aa54.jpg

Te koop Residential Plot Costa Del Sol Mijas € 750.000,-

Price € 750.000,-
Plus d'information
1-7980e48d732b6fc85c14b43b94d2aa54.jpg

Te koop Residential Plot Costa Del Sol New Golden Mile € 780.000,-

Price € 780.000,-
Plus d'information
Disclaimer | Links
Casadelmar %lng_cookie_notice% %lng_close%
x