Málaga

Te koop Middle Floor Apartment Costa Del Sol Málaga € 315.000,-

Ref.no: RSOR5336923
Price: € 315.000,-

1-7980e48d732b6fc85c14b43b94d2aa54.jpg

Te koop Middle Floor Apartment Costa Del Sol Málaga € 315.000,-

Bedrooms2
Salles de bains1
Living area77m²
Poolno
Gardenno
Parkingno
Built year2007
Instelling: stad, dicht bij winkels, dicht bij scholen
Staat: uitstekend, goed, recent gerenoveerd
Uitzicht: straat
Functies: Lift, in de buurt van transport
Meubels: volledig gemeubileerd
Keuken: volledig ingericht
Ref.no: RSOR5336923
Price: € 315.000,-

Plus d'information ›››
Te koop Middle Floor Apartment Costa Del Sol Málaga € 315.000,-

Appartement à vendre dans le quartier d'El Ejido – Rue Alameda Capuchinos, Málaga

Une superbe propriété est à vendre, située dans l'un des quartiers les plus prisés de Málaga, dans le quartier d'El Ejido, à quelques minutes seulement du centre historique.

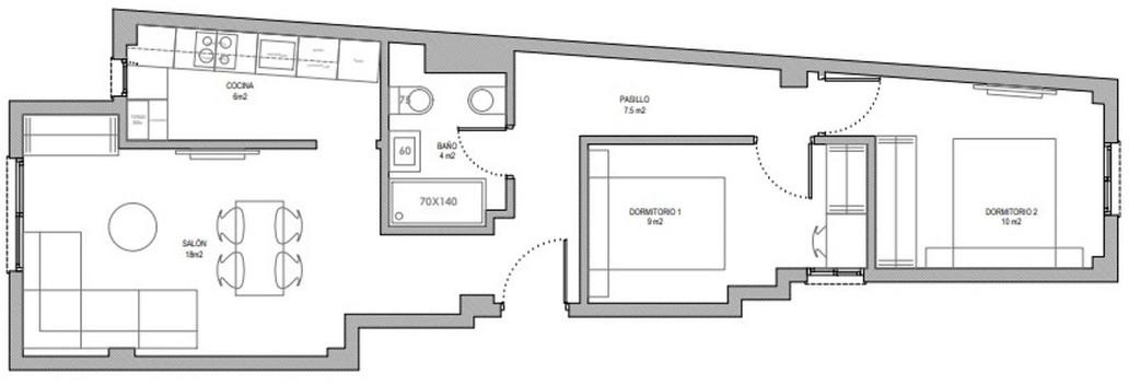
La propriété dispose d'une surface habitable de 77 m², fonctionnellement répartie en 2 chambres, 1 salle de bain complète, un salon-salle à manger lumineux, un couloir et une cuisine entièrement meublée et équipée avec des appareils électroménagers.

Cet appartement, rénové avec des finitions de qualité, est en excellent état et vendu entièrement meublé, prêt à emménager. L'immeuble est également équipé d'un ascenseur, pour un confort optimal au quotidien.

Emplacement de premier choix :
Situé dans un quartier bien établi, avec tous les services à proximité :

Écoles et centres éducatifs à proximité

Supermarchés et magasins locaux

arrêts de transports publics

espaces verts et espaces de loisirs

À quelques minutes seulement du centre-ville de Malaga

Idéal comme résidence principale ou comme investissement, grâce à la forte demande dans la région.

Mentions légales :
Conformément au décret 218/2005 du 11 octobre, qui approuve le règlement relatif à l'information des consommateurs concernant la vente et la location de logements en Andalousie, les clients sont informés que les frais de notaire, les frais d'enregistrement foncier, la taxe sur les transferts de propriété (ITP) et autres frais inhérents à la vente ou à la location ne sont pas inclus dans le prix.

Les frais d'agence sont inclus dans le prix.

Les informations fournies, notamment la superficie, le prix, les conditions et la disponibilité du bien, sont données à titre indicatif uniquement et ne constituent pas une offre contractuelle ferme. Elles peuvent être modifiées sans préavis et la disponibilité du bien doit être confirmée lors de la demande.

Certificat de performance énergétique : en cours d'obtention.

Alternatives

BOHAAP4894_27177_V1_5C5A.jpg

Te koop Appartement Costa Del Sol Estepona Golf € 320.000,-

Price € 320.000,-
Plus d'information
BOHACP1459_5070_V1_D3FA.jpg

Te koop Appartement Costa Del Sol Manilva € 351.000,-

Price € 351.000,-
Plus d'information
BOHADP22_324_V0_EAD4.jpg

Te koop Appartement Costa Del Sol La Carihuela € 357.000,-

Price € 357.000,-
Plus d'information
BOHACP1423_4747_V1_185D.jpg

Te koop Appartement Costa Del Sol Mijas € 299.000,-

Price € 299.000,-
Plus d'information
Disclaimer | Links
Casadelmar %lng_cookie_notice% %lng_close%
x