Málaga

Te koop Herenhuis Costa Del Sol Málaga € 1.749.000,-

Ref.no: RSOR5342944
Price: € 1.749.000,-

1-7980e48d732b6fc85c14b43b94d2aa54.jpg

Te koop Herenhuis Costa Del Sol Málaga € 1.749.000,-

Bedrooms8
Salles de bains3
Superficie du terrain142m²
Living area414m²
Poolno
Gardenyes
Parkingno
Instelling: dicht bij de haven, dicht bij de stad, dicht bij scholen
Klimaatregeling: open haard
Caractéristiques : Placards aménagés, Proximité des transports, Terrasse privée, Débarras, Buanderie, Logement de service, Proximité d'une église, Fibre optique
Ref.no: RSOR5342944
Price: € 1.749.000,-

Plus d'information ›››
Te koop Herenhuis Costa Del Sol Málaga € 1.749.000,-

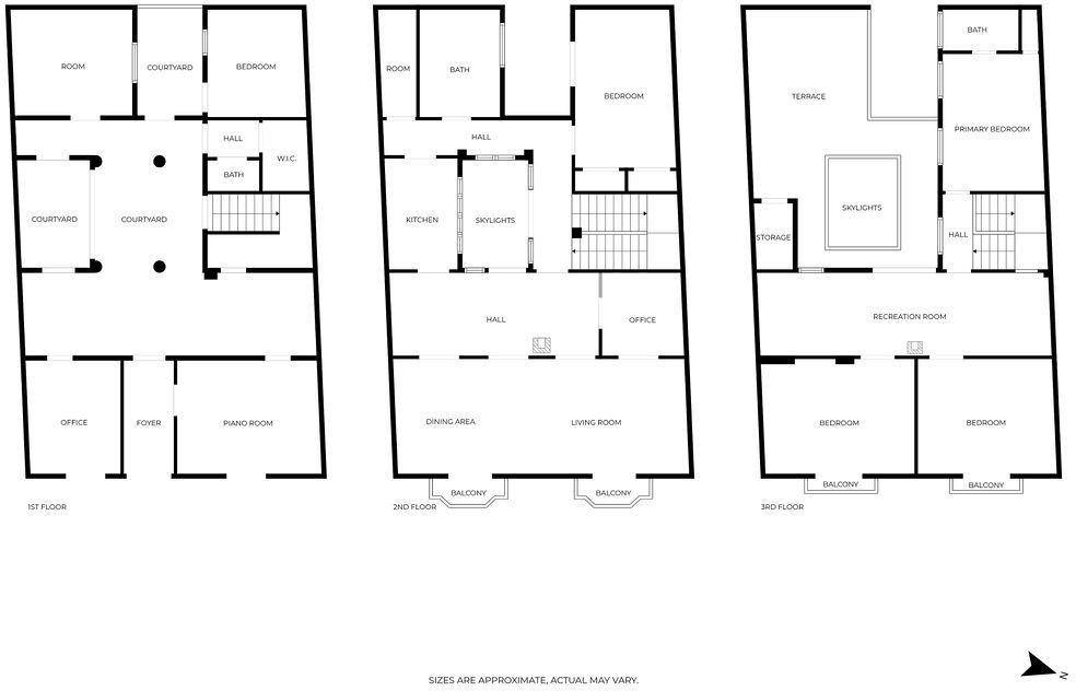
Cachée au cœur des rues historiques du centre de Malaga, cette remarquable maison à cour intérieure incarne un mode de vie qui a façonné les habitations méditerranéennes depuis des siècles. Dès l'entrée, la maison révèle son caractère : un vaste patio à ciel ouvert, encadré d'élégantes colonnes de pierre et de poutres en bois, où la lumière du soleil inonde les pièces et où règne une atmosphère paisible et intemporelle. Les maisons organisées autour d'une cour centrale font partie intégrante de la vie méditerranéenne depuis l'Antiquité, de la domus romaine aux maisons à patio andalouses. Il ne s'agit pas d'un palais, mais de quelque chose de plus rare : une véritable demeure imprégnée d'histoire. Carrelage d'origine, détails artisanaux et magnifiques portes et fenêtres en bois ont été soigneusement préservés. L'agencement autour de la cour intérieure crée une atmosphère intérieure naturellement sereine, une qualité qui explique la pérennité de cette tradition architecturale dans les villes méditerranéennes. La propriété offre une surface de 416 m² répartie sur trois niveaux organisés autour d'un patio central. Le rez-de-chaussée, organisé autour de la cour intérieure, comprend plusieurs chambres, une salle de bains et de vastes espaces intérieurs. Il a autrefois servi de galerie d'art et pourrait facilement accueillir un atelier d'artiste, un showroom ou toute autre activité professionnelle, tandis qu'une entrée indépendante permet aux étages supérieurs de préserver l'intimité de chacun. Le premier étage abrite les pièces de vie principales, dont un salon-salle à manger lumineux, une cuisine donnant sur la cour et bénéficiant d'une abondante lumière naturelle grâce à la terrasse. La chambre principale, avec sa salle de bains privative, se trouve également à ce niveau. Le deuxième étage comprend trois autres chambres et une salle de bains supplémentaire. De là, de grandes portes vitrées s'ouvrent directement sur la terrasse privée sur le toit, un havre de paix surplombant les toits historiques de la ville. Avec ses huit chambres et trois salles de bains, cette maison offre une flexibilité exceptionnelle, pouvant servir de spacieuse maison familiale, de résidence créative ou d'opportunité d'investissement unique. Une maison où l'histoire n'est pas simplement préservée mais vécue, et où la cour intérieure demeure le cœur paisible de la vie quotidienne à Malaga.

Alternatives

BOHACP1277_3494_V1_6137.jpg

Te koop Herenhuis Costa Del Sol Marbella East € 1.675.000,-

Price € 1.675.000,-
Plus d'information
1-7980e48d732b6fc85c14b43b94d2aa54.jpg

Te koop Herenhuis Costa Del Sol Marbella € 1.775.000,-

Price € 1.775.000,-
Plus d'information
1-7980e48d732b6fc85c14b43b94d2aa54.jpg

Te koop Herenhuis Costa Del Sol Marbella € 1.675.000,-

Price € 1.675.000,-
Plus d'information
1-7980e48d732b6fc85c14b43b94d2aa54.jpg

Te koop Herenhuis Costa Del Sol The Golden Mile € 1.695.000,-

Price € 1.695.000,-
Plus d'information
Disclaimer | Links
Casadelmar %lng_cookie_notice% %lng_close%
x